Bellevue Remodel

- Full remodel in Bellevue, WA, completed 2020
- Contractor: YS Built
- Structural Engineer: Harriott Valentine Engineers, Inc.
- Photography: Resound Architecture + Design
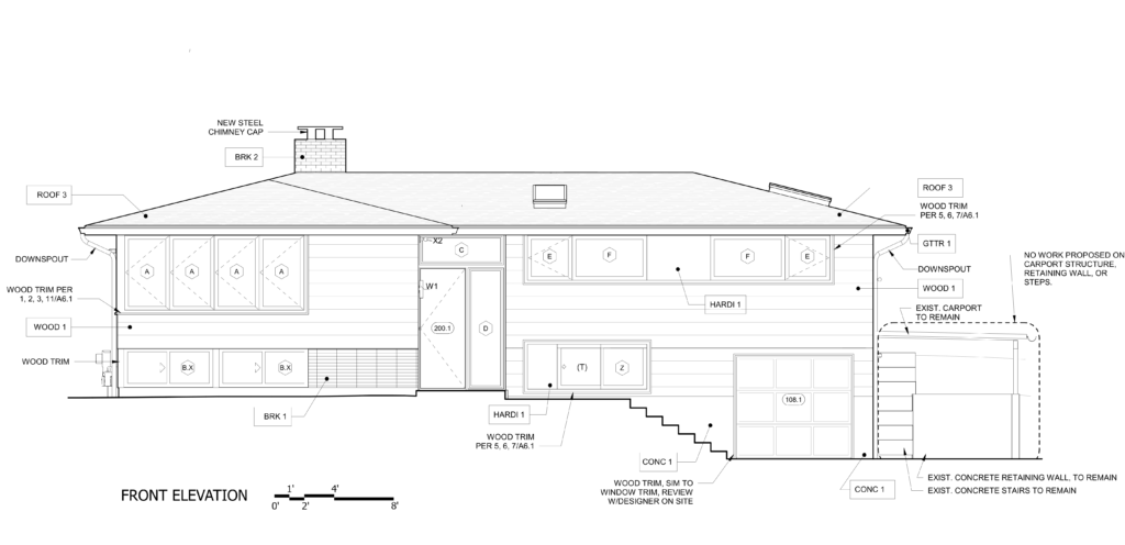
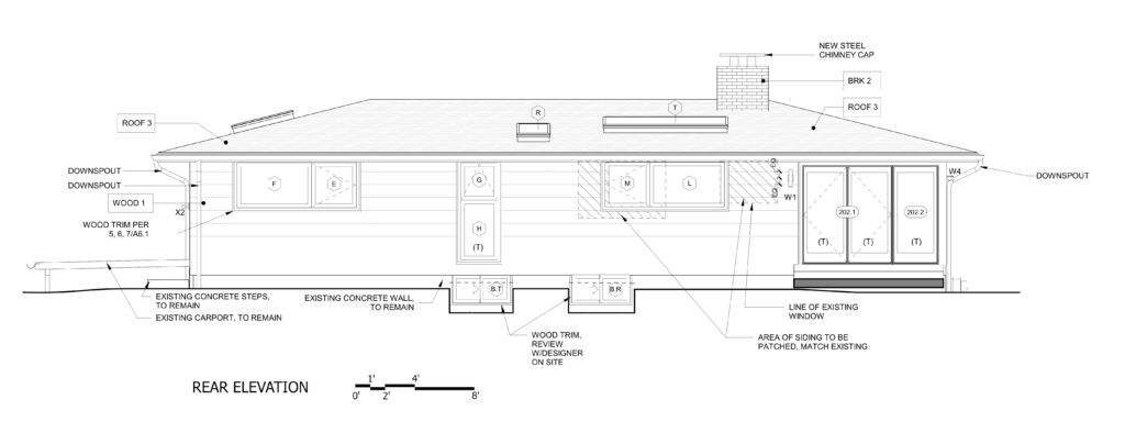
This 1950s split-level home was fully renovated to improve functionality of the home, thermal performance, and natural light.
- Mini-splits and an ERV system, along with heat-pump were added to improve energy efficiency.
- Skylights were strategically added to bring daylight into dark spaces.
- Both bathrooms were updated, one of which now accessible access to the shower for aging parents when they visit.
- The entry way was opened up to provide better flow between the levels, but a wood screen element still provides some privacy from the street.
- There is even a hidden door to a secret kids-only area. Shhh!










before






