Montopolis Twins

- New Construction in Austin, Texas, completed 2018
- 5-Star rating, Austin Green Building Program
- Contractor: Form to Finish Builders
- Structural Engineer: Synergetic Engineering
- Civil Engineer: Estimates on Center
- Photography: Casey Woods
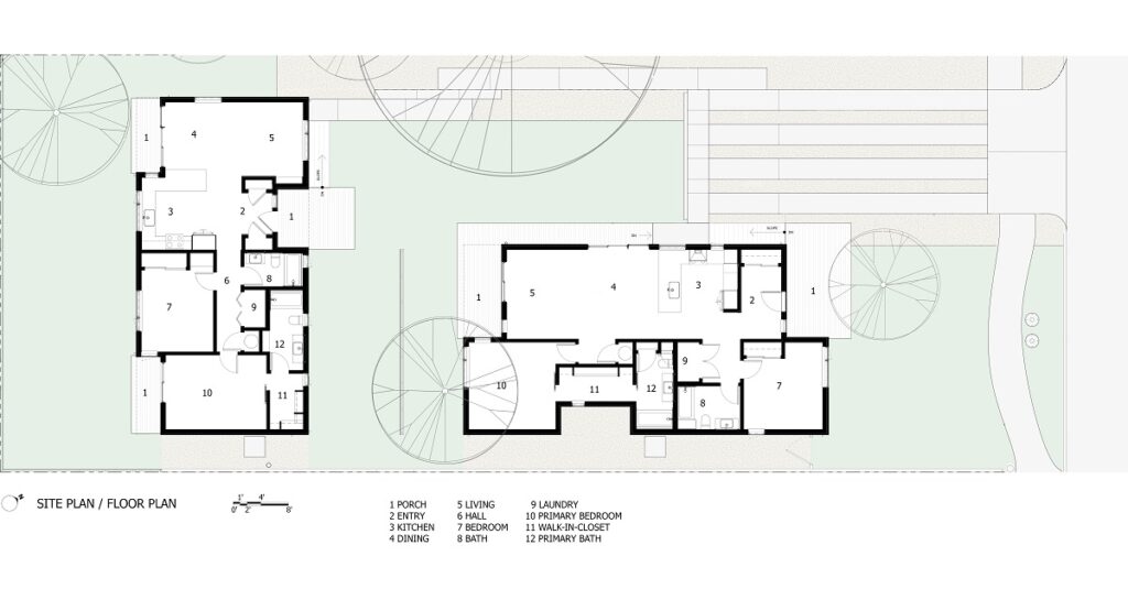
The Montopolis Twins are two single-family homes situated on a single lot. The primary residence at the front of the property is a 1,250 sqft, light-filled, two-bedroom home. The matching unit at the rear is an 1,100 sqft DADU. The residences resemble each other in size and form, creating a cohesive balance between shared and private space for multi-generational families or affordable starter homes. The design focused on simple forms that respond to the site, the surrounding neighborhood, and local climate. The project incorporates sustainable design principles, including durable, low-maintenance materials, continuous insulation, resulting in a 5-star rating from the Austin Green Building Program.
Unit 1








Unit 2









